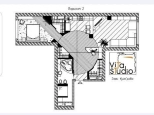
Продается Студия квартира, 84 кв.м., 6/48 эт
Обзор№ - 866
| Стоимость | 17 900 000 |
|---|---|
| Комнат в квартире | Студия |
| Площадь, кв.м. | 84 |
| Этаж | 6 |
| Этажность | 48 |
| Материал стен | монолит |
В избранное Недвижимость Квартиры / 2-к квартира, 84 м², 6/48 эт.
ЖК "Веллхаус на Ленинском"Продается двухкомнатная квартира без ремонта свободной планировки площадью 84 метра с возможностью сделать две изолированные спальные комнаты, кухню - гостиную, два санузла, гардеробную.Окна на обе стороны.Прямая продажа от собственника.Дизайн-проект в подарок




































