Продается 3-х комн. квартира, 102.5 кв.м., 3/21 эт
Обзор№ - 3120
| Стоимость | 27 755 369 |
|---|---|
| Комнат в квартире | 3 |
| Площадь, кв.м. | 102.5 |
| Жилая площадь | 64 |
| Площадь кухни, кв.м. | 13 |
| Этаж | 3 |
| Этажность | 21 |
| Материал стен | монолит |
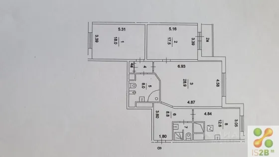
Лот № 3120 Продается 3-х комнатная уютная квартира в монолитном доме индивидуального пректирования. В доме 21 этаж, наружные стены двухслойные монолитные. Вьезд во двор через шлагбаум, в подьезде консьеж. В квартире 2 санузла, гостиная, 2 спальни, потолки- 3,15 м. Общая площадь 102 кв.м, кухня-12,6 кв.м, комнаты 29, 18 и 17,5 кв.м. Перепланировка оформлена документально. Отличное расположение, развитая инфраструктура. В шаговой доступности 3 парка- парк Олимпийской деревни, парк Школьников, парк Летчиков испытателей, спортивный комплекс Олимпийской деревни, три школы, детский садик с бассейном, ВУЗЫ- МИРЭА, РАНХ и ГС. Рядом ТРЦ, медицинские центры, детская поликлиника, концертный зал им. Рахманинова, кинотеатры. Станция метро Юго-Западная в шаговой доступности. Взрослые собственники муж и жена. Возможна ипотека.



































