Продается 3-х комн. квартира, 68 кв.м., 3/3 эт
Обзор№ - 3559
| Стоимость | 20 500 000 |
|---|---|
| Комнат в квартире | 3 |
| Площадь, кв.м. | 68 |
| Этаж | 3 |
| Этажность | 3 |
| Материал стен | кирпичный |
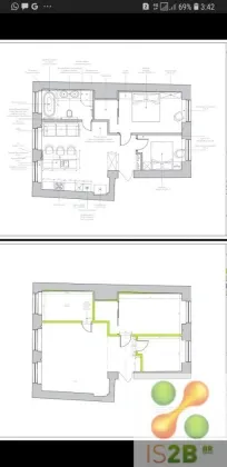
Лот № 3559 Лучшее предложение по цене-качеству , квартира в тихом центре. Потолки более 3х метров. Лаги на полу железные.Начат ремонт.Произведен демонтаж стен и потолка и пола до лаг.Зачищен кирпич, поменяны стояки и ботареи, окна, поставлены новые стены.Несущие стены только по периметру. Место отличное, рядом магазины, метро, кафе, ботанический сад с игровой зоной для детей и гуляний. При этом очень тихо. Дом во дворе. Торг реальному покупателю. Свободная продажа. Агентам, с предложением, услуг просьба не звонить.















