Продается 2-х комн. квартира, 52 кв.м., 29/64 эт
Обзор№ - 3686
| Стоимость | 31 000 000 |
|---|---|
| Комнат в квартире | 2 |
| Площадь, кв.м. | 52 |
| Этаж | 29 |
| Этажность | 64 |
| Материал стен | другой |
В избранное Продам двухкомнатную вторичку 52.0 м² этаж 29/64 город Москва проезд Красногвардейский 1-й 21с/1 пр., Международная
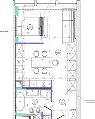
Лот № 3686 Собственник. Сделан проект у модного дизайнера. Кухня-гостиная и отдельно спальня. Whitе bох, дополнительно сделана разводка вентиляции и кондиционирования, черновая электрика, демонтированы перегородки. Возможна помощь в реализации дизайн-проекта «под ключ». Красивый вид на центр. Полная стоимость, без обременений, 1 взрослый собственник.






















