Продается 3-х комн. квартира, 81.6 кв.м., 2/8 эт
Обзор№ - 3408
| Стоимость | 25 000 000 |
|---|---|
| Комнат в квартире | 3 |
| Площадь, кв.м. | 81.6 |
| Этаж | 2 |
| Этажность | 8 |
| Материал стен | кирпичный |
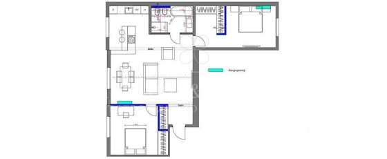
Лот № 3408 ID 624379 Светлая трехкомнатная квартира общей площадью 81,6 кв. м расположена на 2-ом этаже в доме образцового содержания. Квартира в идеальном состоянии, с новым дизайнерским ремонтом продается со всей мебелью и бытовой техникой под ключ. Планировкой предусмотрена просторная кухня-столовая-гостиная (студией) с островом, 2 спальни (одна из которых со своей гардеробной), просторная ванная комната с ванной и душевой кабиной с тропическим душем и раздельными раковинами. В квартире установлены стеклопакеты, кондиционеры, видеодомофон и подогреваемые полы. Двери, керамогранит (Италия), инженерная доска (Швеция), сантехника Duravit, фартук, столешница, остров на кухне, подоконники из гранита. Потолки 3 м. Дополнительным бонусом к квартире предлагается кирпичный гараж, расположенный в шаговой доступности от дома.





















