Продается 3-х комн. квартира, 101 кв.м., 19/19 эт
Обзор№ - 3860
| Стоимость | 39 000 000 |
|---|---|
| Комнат в квартире | 3 |
| Площадь, кв.м. | 101 |
| Этаж | 19 |
| Этажность | 19 |
| Материал стен | другой |
В избранное Квартира с дизайнерским ремонтом
Лот № 3860 Доброго времени суток!
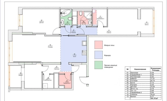
Продается 3-х комнатная квартира ( 3 изолированные комнаты, кухня-гостиная, 2 просторные гардеробные, прачечная комната, 2 совмещенных сан. узла) с дизайнерским ремонтом из качественных материалов, премиальной мебелью и техникой. Продуманная планировка, позволяющая рационально использовать каждый квадратный метр квартиры. До садового кольца 10 минут на автомобиле. Также, за дополнительную стоимость, в собственности имеются 2 машино-места на подземной парковке.
Предложение эксклюзивно от собственника, просьба агентов по продаже недвижимости не обращаться по вопросам сотрудничества.






































