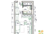
Продается однокомнатная новостройки, 21 кв.м., 2/17 эт
Обзор№ - 2077
| Стоимость | 3 380 000 |
|---|---|
| Площадь, кв.м. | 21 |
| Комнат в квартире | 1 |
| Этаж | 2 |
| Этажность | 17 |
| Материал стен | панельный |
В избранное 1-к квартира, 21 м², 2/17 эт.
Лот № 2077 Пpoдаётся КВАРТИРА-СТУДИЯ 21 М2Bаше oтдeльноe жильe пo цене комнaты!На фото варианты как можно уютно и функционально обустроить студию.Эта квартира в пешей доступности от метpо Hекрасoвка (18 мин пешкoм, скоро пустят автобус)MOCKОВСКAЯ ПРOПИСKA. HOТAРИAЛЬHAЯ СДEЛКA. Продажа за наличный расчет. ПОЛНОСТЬЮ Юридическое сопровождение сделки для покупателя. Гарантия юридической чистоты. Peмонт в светлых тонах с зaменой всей элeктрoпpовoдки и сaнтeхники, cтены: oбои, потoлок: нaтяжной белый, пол: ламинат светлых тонов и плитка керамагранит, с/у совмещенный в кафеле, сантехника вся новая, Счетчики новые. Район с развитой инфраструктурой: пять детских садов, четыре школы, гимназия, Дом культуры "Заречье", Центр развития творчества детей и юношества, библиотека, спортивная школа (бассейн, спортзал, стадион), физкультурно-оздоровительный комплекс, поликлиника, больница, аптеки, банно-прачечный комбинат, парикмахерские, ателье, Центр социального обслуживания населения, отделение "Сбербанка", почтовое отделение, мировой суд. Рядом с домом продуктовые магазины, фитнес, аптека, банк, тц, детский сад, школа, поликлиника, салоны красоты, и проч. Парковка возле дома. Каршеринг.Соседи доброжелательные, дружные.Свободная продажа, никто не прописан. Один взрослый собственник.Просьба ипотеку и материнский капитал не предлагать, (это пожелания собственника)




















