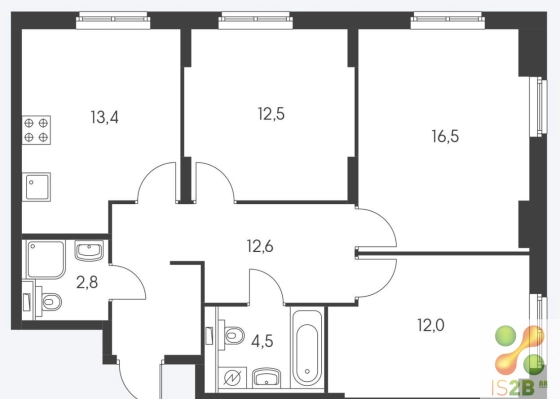
Продается 3-х комн. новостройки, 74.4 кв.м., 24/27 эт
Обзор№ - 672
| Стоимость | 17 500 000 |
|---|---|
| Площадь, кв.м. | 74.4 |
| Жилая площадь | 41 |
| Площадь кухни, кв.м. | 13.4 |
| Комнат в квартире | 3 |
| Этаж | 24 |
| Этажность | 27 |
| Материал стен | монолит |
В избранное Недвижимость Квартиры / 3-к квартира, 74.4 м², 24/27 эт.
24 этаж, окна в область и на живописный мост. Дом построен (коробка), заселение 4 кв 2020. Мы собственники, ДДУ. О ЖК очень много информации, чистейший район Москвы, вид из окна очень крутой. Дополнительно куплены 2 кладовых, пока не выставляем - можно купить вместе с квартирой.Желательно писать в сообщения, а не звонить










