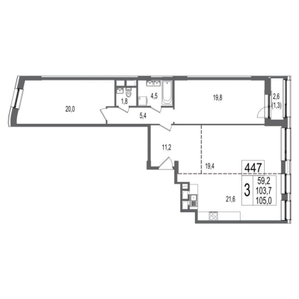
Продается 3-х комн. новостройки, 105 кв.м., 8/17 эт
Обзор№ - 855
| Стоимость | 30 355 500 |
|---|---|
| Площадь, кв.м. | 105 |
| Комнат в квартире | 3 |
| Этаж | 8 |
| Этажность | 17 |
| Материал стен | монолит |
В избранное Продажа 3-комнатной квартиры 105 м², 8/17 этаж Новостройка
«Резиденции архитекторов» – жилой комплекс, расположенный на берегу реки Яузы, между Большой Почтовой улицей и Рубцовской набережной, в Басманном историческом районе столицы.
Удобная локация дает возможность быстро добираться как до центра Москвы, так и в любой другой район столицы, используя личный или городской транспорт. Станция метро «Электрозаводская» находится в пешей доступности.
Разнообразная инфраструктура, малые архитектурные формы, ландшафтный дизайн и собственный пешеходный бульвар – здесь есть все для яркой и комфортной жизни, работы, творчества и воспитания детей.
На территории комплекса находится собственный детский сад, окруженный с двух сторон сквером, а также имеются многофункциональные детские площадки.
Торгово-офисные комплексы, рестораны и кафе, галереи, творческие студии и арт- пространства для работы и отдыха делают инфраструктуру квартала еще разнообразнее и интереснее.
















